Sold

78 Charlotte St, Ashfield

SOLD

15 4 4

A Rare Property Package in a Key Location

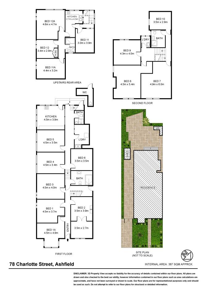
Currently operating as a 15-room boarding house and earning solid annual return of $214K per annum, this super-sized two-storey property offers a rare real estate package. 

Occupying a large 537.5sqm block of land, with many retained period details and presents a unique prospect with a big future. 

Fully compliant boarding house with four bathrooms and two kitchens with a great sized back garden and a paved area for entertaining.

Makes a great value- add project with potential to upgrade to student accommodation or transform into super family home (STCA).

Walking distance to train station, shops and schools. Recession proof investment.

For further information on this exceptional opportunity, please contact the exclusive selling agent listed below.

Joe Vigorito

Ph: 0414 645 704

Romani Estate Agents

 

 

15 4 4

Details

Address 78 Charlotte St, Ashfield
Price SOLD
Property Type Residential
Property ID 335
Category Block Of Units

Tools

Share This Property