Sold

2 Russell St, Granville

SOLD for $1,480,000

8 2

Flexibility, convenience and possibility

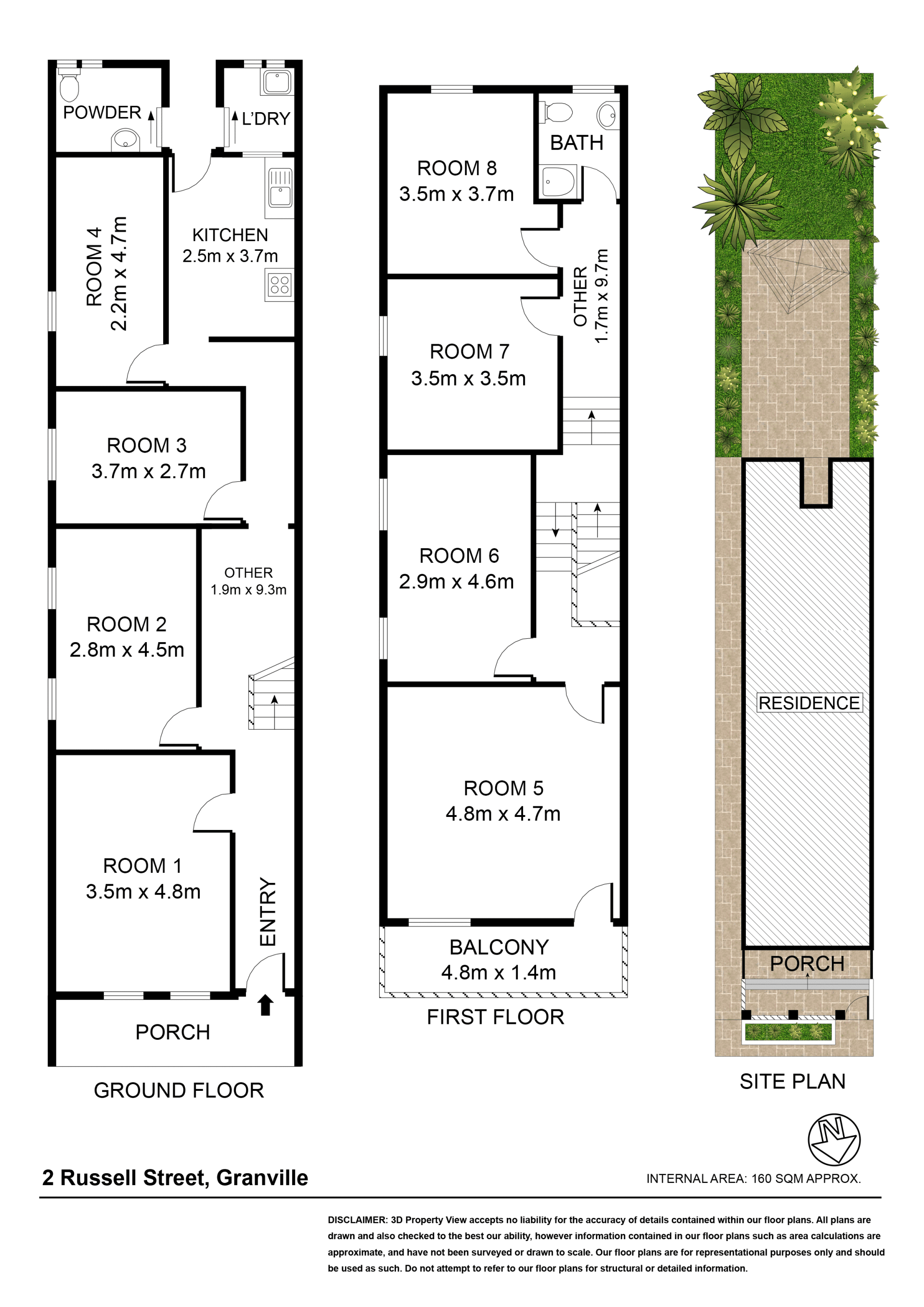
Ideally suited to the discerning investor or owner seeking to possess potential packed property, this large-sized Victorian-era terrace offers opportunity and possibility over two spacious levels. 

Currently zoned B4,mixed use, suitable for business, office, residential, retail and other development, and currently configured as a eight-room boarding house with a potential income of $86,500 , there is ample scope to add value and increase the income or convert into a stunning family home, STCA. 

Retaining its original period character and complete with high ceilings, lacework balcony and rear garden, this historic property is set on a generous level block just within short walking distance to Granville station and local central business district, shops, eateries and entertainments.

Auction to Be held at level 1/46 Burwood Rd, Burwood on Wednesday 24 August at 7.00pm 

 

8 2

Details

Address 2 Russell St, Granville
Price SOLD for $1,480,000
Property Type Residential
Property ID 261
Category House

Tools

Share This Property