Sold

Unit 202/1-15 West St, Petersham

SOLD for $713,500

1 1 1

Bright, Spacious and Convenient

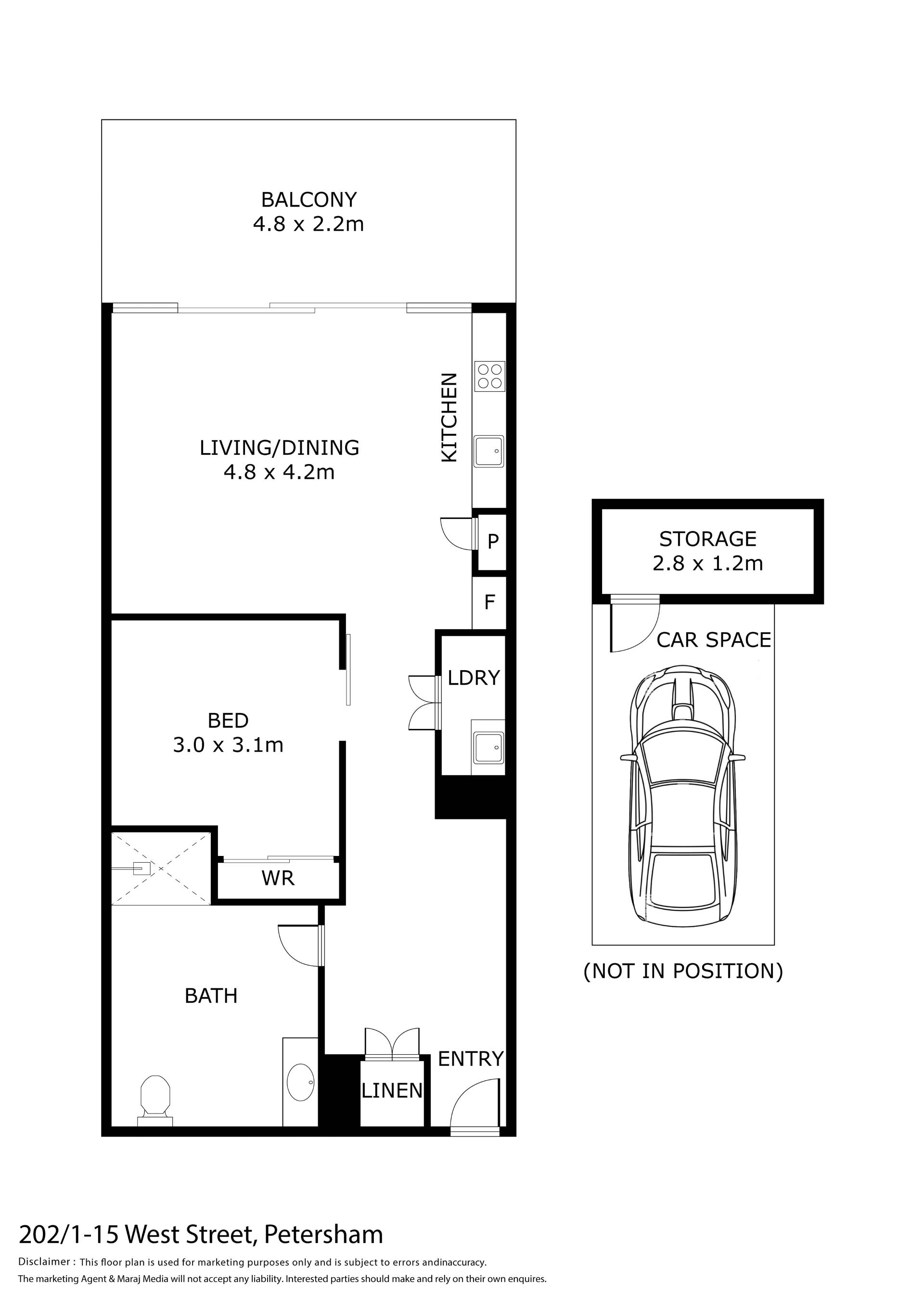
Centrally located in Petersham, this bright and spacious one bedroom apartment with a registered car space offers a great entry level to the property market. Set in a convenient city fringe location, you will enjoy the Inner West lifestyle close to Sydney CBD. This apartment features an open plan living/dining area that opens up to a bright balcony. 

First home buyers and savvy investors looking for a great yield will appreciate such an iconic residence with lifestyle convenience. East aspect boasting an abundance of natural sunlight into the living areas.


- Light filled open layout extending to private balcony 
- Modern kitchen with gas cooking and quality appliances
- Well equipped contemporary bathroom and internal laundry
- Air conditioning ensuring a comfortable indoor climate
- Secure basement parking with separate storage cage
- Bus stop at your doorstep and Petersham train station only a brief walk away
- Security building with lift access and intercom
- currently leased for $590pw
- Rates: Water $208pq, Council $371pq, Strata $813pq (All approx.)

 

1 1 1

Details

Address Unit 202/1-15 West St, Petersham
Price SOLD for $713,500
Property Type Residential
Property ID 443
Category Unit
Floor Area 77 m2

Tools

Share This Property