Sold

36 Stanmore Rd, Enmore

SOLD for $1,900,000

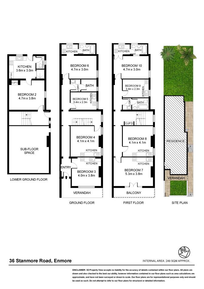
9 5 248 m2

Position, Size and Potential, Multiple Income Stream

Ideally situated just a couple of blocks back from Enmore Road’s thriving lifestyle hub, this super-size three-storey residence is bustling with charm, size, and opportunity, and offers a great chance to add some excellent value to a spacious property.

Currently a 9-room 3 story terrace, it features many retained period details with high pressed metal ceilings, traditional features and a private garden at rear.

It holds outstanding potential for buyers looking to make their mark in the highly popular Enmore market with scope to make minor cosmetic changes and make upmarket student accommodation or redesign into a spectacular family residence, the choice is yours.

For further information on this exceptional opportunity, please contact the exclusive selling agent listed below.

Joe Vigorito

Romani Estate Agents

Ph: 0414 645 704

9 5 248 m2

Details

Address 36 Stanmore Rd, Enmore
Price SOLD for $1,900,000
Property Type Residential
Property ID 299
Category House
Land Area 248 m2

Tools

Share This Property