Sold

233 Trafalgar Street, Petersham

SOLD for $1,890,000

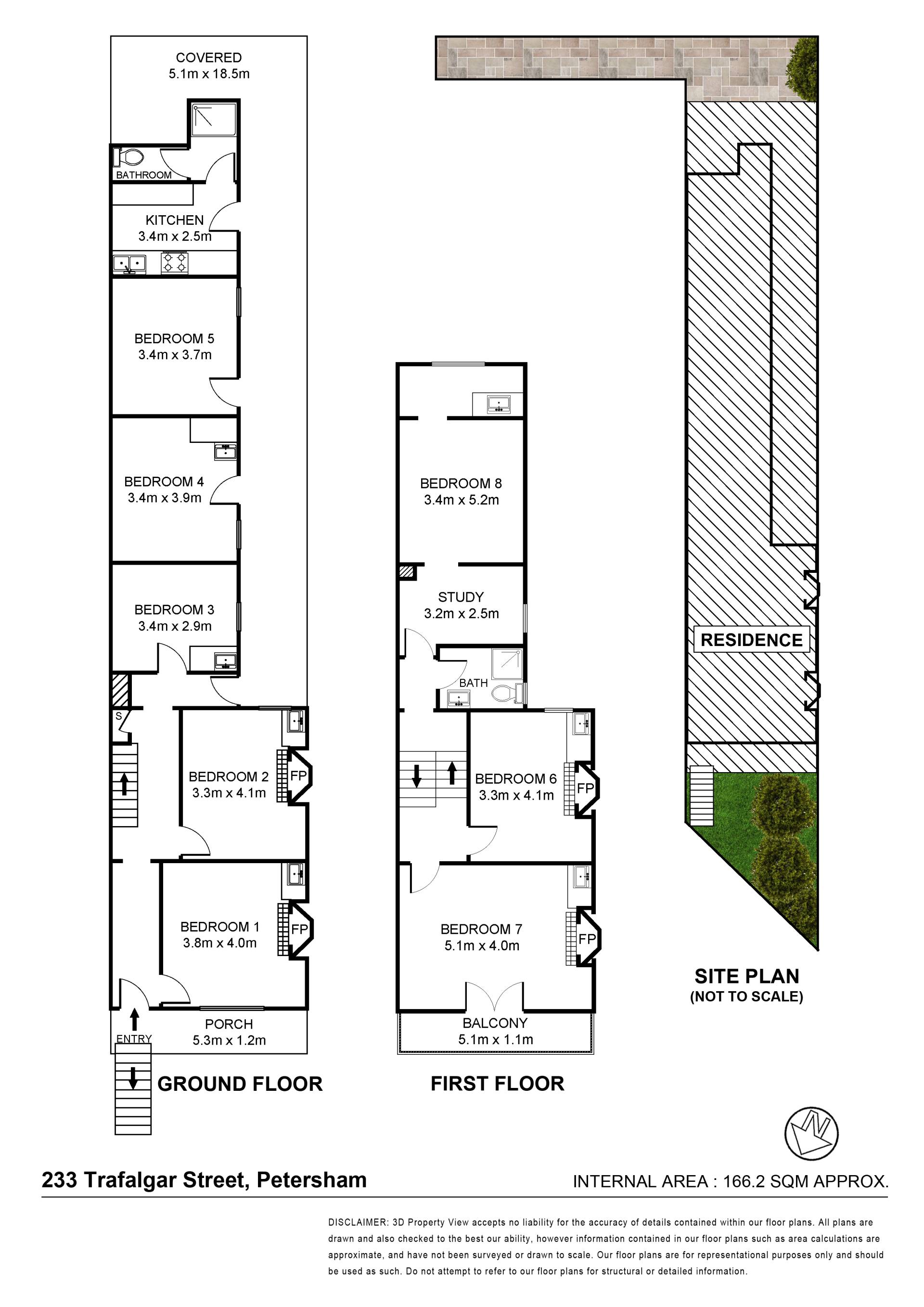
8 2 247 m2

Brimming with exciting potential

Home & Income
Two storey terrace with 8 bedrooms and 2 bathrooms. Registered boarding house requiring minor cosmetic updating with potential to increase returns and add value. Perfectly positioned in the vibrant heart of Petersham.
This property would provide the perfect family residence (S.T.C.A.) or investment option in an enviable position to walk to cafés, eateries and shops. Easy access to schools, RPA Hospital, walking distance to both Petersham and Stanmore train stations.
Inspection highly recommended.

Features

Balcony Courtyard
8 2 247 m2

Details

Address 233 Trafalgar Street, Petersham
Price SOLD for $1,890,000
Property Type Residential
Property ID 190
Category Terrace
Land Area 247 m2

Tools

Share This Property